Обяви За нас Контакти
Продава 3-СТАЕН
град София, Зона Б-18
315 100 €
616 282.03 лв.

(2 300 €, 4 498.41 лв./m2)
Цената е с включено ДДС
История на цената
Коригирана в 10:49 на 21 август, 2025 год.
Обявата е посетена 1411 пъти.
Площ:
137 m2
Етаж:
4-ти от 7
Газ:
НЕ
ТEЦ:
НЕ
Строителство:
Тухла,

Описание на имота:


Агенция SUPRIMMO: www.suprimmo.bg
Представяме тристаен апартамент в новострояща се бутикова жилищна сграда с ограничен брой жилища, проектирана с фокус върху комфорт, енергийна ефективност и стил.
Районът осигурява спокойна жилищна атмосфера, съчетана с близост до културни обекти, заведения и метростанция 'Константин Величков' (3 минути пеша).

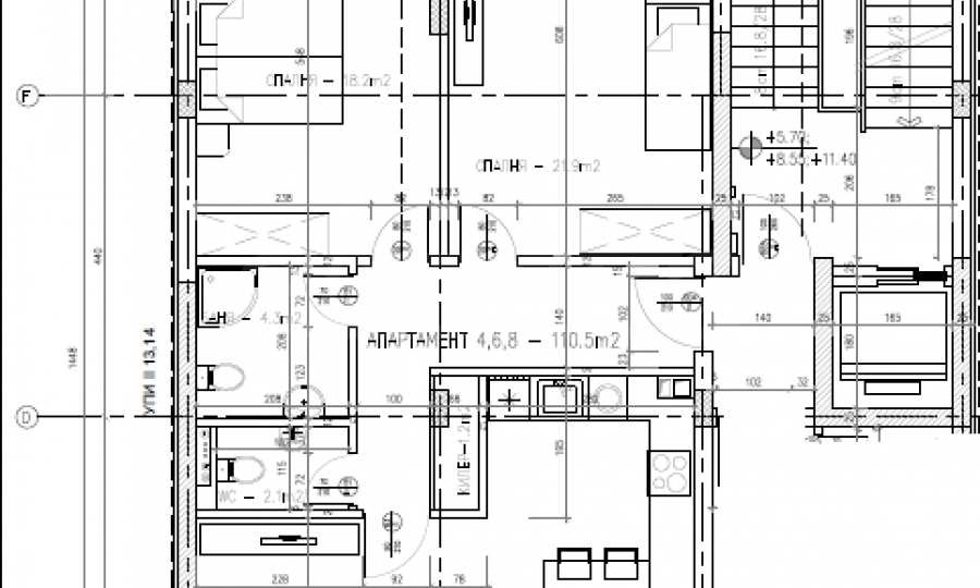
Имотът е разположен на четвърти жилищен етаж и предлага 110.5 кв.м. площ.

Разпределение:
антре;
всекидневна с кухненска част;
спалня;
баня с тоалетна;
отделна тоалетна;
помещение за съхранение.

Сградата се състои от седем етажа с общо 11 апартамента. Архитектурната визия е модерна, а всички материали, свързани с топлоизолираността отговарят на клас А по скалата за енергоспестяване. Отоплението и охлаждането в апартаментите е решено със съвременна термопомпа. Паркирането е посредством закрити паркоместа.

Степен на издаване на апартаментите:
настилка цименто-пясъчна замазка, стени и тавани - гипсова мазилка;
санитарен възел с под с цименто-пясъчна замазка и парозамазна хидроизолация, стени и тавани на варова мазилка;
тераси с настилка от мразоустойчив гранитогрес, монтирани осветителни тела, парапет от стъкло триплекс;
монтирано ел.табло с предпазители, заредени ключове и контакти, фасунги, монтирана водопроводна и канализационна инсталация;
монтиран домофон и изводи за телефон/интернет;

Гъвкави схеми на плащане.

За допълнителна информация и организиране на оглед, моля свържете се с отговорния брокер по офертата.

За повече информация свържете се с нас и цитирайте референтния номер на имота. Моля, кажете, че сте видeли обявата в този сайт.
Референтен номер: SOF-132720
Тел: 0882 851 775, 02 403 82 54
Отговорен брокер:Мария Михайлова
Без комисиона от купувача
Виж всички обяви в superimoti.bazar.bg или тук
Особености
Тухла
Асансьор
С гараж
За контакт:
0882851775
Брокер:
Мария Михайлова
0882 851 775
Още оферти от брокера: Продава | Дава под наем | Купува | Наема
Агенция:
СУПРИММО - ГЛАВЕН ОФИС
02 447 12 93; 0883 700 335
СУПРИММО - ГЛАВЕН ОФИС logo
Медал за прослужено време
В imot.bg от 2008 г.
superimoti.imot.bg
Адрес:
област София, гр. София, бул. 'Черни връх' 51-Г, етаж 7(офис сграда Realtons Pl
http://superimoti.bg
ИЗПРАТИ ЗАПИТВАНЕ
ИЗПРАТИ ЗАПИТВАНЕТО

Продава 3-СТАЕН
град София, Зона Б-18
Обява: 1c175190040237656

315 100 €
616 282.03 лв.
История на цената
(2 300 €, 4 498.41 лв./m2)

Цената е с включено ДДС
ЗАПАЗИ ОБЯВАТА

Местоположение: град София, Зона Б-18

Допълнителни данни за имотите в района и сравнение с други райони: Търсене в АРХИВ 2013 - 2025 г.











Добави/редактирай
вид имот и район
*Средните цени са определени чрез медиана стойност.