Обяви За нас Контакти
Продава 2-СТАЕН
град София, Обеля 1
119 053 €
232 847.43 лв.

(1 609 €, 3 146.93 лв./m2)
Цената е с включено ДДС
История на цената
Публикувана в 12:00 на 12 февруари, 2026 год.
Обявата е посетена 87 пъти.
Площ:
74 m2
Етаж:
4-ти от 8
Газ:
НЕ
ТEЦ:
ДА
Строителство:
Тухла, Ще бъде въведен в експлоатация 2029 г.

Описание на имота:


Агенция SUPRIMMO: www.suprimmo.bg
Представяме комфортен двустаен апартамент за продажба в Mountain View Obelya - ексклузивен жилищен комплекс с концепция за функционалност, комфорт и достъпност, с широк избор от практични нови жилища в бързо развиващия се кв. 'Обеля'. Бъдещите собственици на имота ще се насладят на спокойна и добре организирана среда с отлична логистика и лесен достъп до ключови части на столицата, озеленен вътрешен двор и разнообразие от търговски обекти в самия комплекс.

Само на 35 метра от метростанция, локацията осигурява бърз и лесен достъп до центъра на София, както и до главните пътни артерии и спирки на градския транспорт. Районът предлага всички необходими удобства за комфортен живот търговски обекти, училища, детски градини, спортни комплекси и здравни заведения в непосредствена близост.

ЕКСКЛУЗИВНИ ПРОДАЖБИ. БЕЗ КОМИСИОНА ОТ КУПУВАЧА!
Разрешение за строеж - в средата на лятото 2026 г.

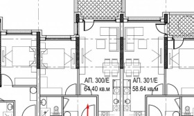
Имотът е разположен на 4-ти етаж и е с обща площ 74,41 кв.м, чиста площ - 64,4 кв.м, върху които са разпределени: антре, баня с тоалетна, дневна с кухня и тераса, една спалня. Жилището се издава в степен на завършеност по БДС, с петкамерна PVC дограма Rehau, с троен стъклопакет и блиндирана входна врата.

Има възможност за закупуването на гаражи на цени от 40 000 евро (78 233.20 лв.), както и външни паркоместа на цени от 18 000 евро (35 205 лв.)

Новият комплекс е с финансово предимство без индексация на цените след подписване на договор, както и с възможност за избор между две схеми на плащане.

Депозит:
Депозит за двустаен апартамент - 5 000 евро (9 779 лв.);
Депозит за тристаен или четиристаен имот - 10 000 евро (19 558.30 лв.).

Схема 1:
При подписване на договор: 40%;
При кота 0: 20%;
20% на Акт 14;
10% на Акт 15;
10% на Акт 16.

Схема 2:
При подписване на договор: 20%;
При кота 0: 10%;
50% - чл.181;
10% на Акт 15;
10% на Акт 16.

Концепция

Проектът ще се отличава с модерна визия, функционална ...

За повече информация свържете се с нас и цитирайте референтния номер на имота. Моля, кажете, че сте видeли обявата в този сайт.
Референтен номер: SOF-137847
Тел: 0886 056 776, 02 404 89 80
Отговорен брокер:Сара Ароу
Особености
Тухла
Асансьор
За контакт:
0886056776
Брокер:
Сара Ароу
0886 056 776
Още оферти от брокера: Продава | Дава под наем | Купува | Наема
Агенция:
СУПРИММО - ГЛАВЕН ОФИС
02 447 12 93; 0883 700 335
СУПРИММО - ГЛАВЕН ОФИС logo
Медал за прослужено време
В imot.bg от 2008 г.
superimoti.imot.bg
Адрес:
област София, гр. София, бул. 'Черни връх' 51-Г, етаж 7(офис сграда Realtons Pl
http://superimoti.bg
ИЗПРАТИ ЗАПИТВАНЕ
ИЗПРАТИ ЗАПИТВАНЕТО

Продава 2-СТАЕН
град София, Обеля 1
Обява: 1b177089044669061

119 053 €
232 847.43 лв.
История на цената
(1 609 €, 3 146.93 лв./m2)

Цената е с включено ДДС
ЗАПАЗИ ОБЯВАТА

Местоположение: град София, Обеля 1

Допълнителни данни за имотите в района и сравнение с други райони

Покажи

Период

и 2 месеца

* Средните цени са определени чрез медианна стойност