Обяви За нас Контакти
Продава 2-СТАЕН
град София, Люлин - център
136 500 €
266 970.80 лв.

(1 978 €, 3 868.63 лв./m2)
Цената е с включено ДДС
История на цената
Публикувана в 18:00 на 4 февруари, 2026 год.
Обявата е посетена 744 пъти.
Площ:
69 m2
Етаж:
3-ти от 7
Газ:
НЕ
ТEЦ:
НЕ
Строителство:
Тухла, Ще бъде въведен в експлоатация 2027 г.

Описание на имота:


Агенция SUPRIMMO: www.suprimmo.bg
Представяме Ви 'Lyulin Central 2 - модерна жилищна сграда в един от уредените квартали в София 'Люлин-Център'.
Начало на строителните дейности - 2025г.Срок на завършване 24 месеца.
Параметри
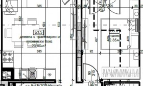
Двустаен апартамент със ЗП 59.23 кв.м.
Изложение: северозапад;
Разпределение: Коридор, голяма дневна с кухненски бокс,спалня, тераса, баня с тоалетна, склад;

Сградата се намира на комуникативно място на ул.'Христо Фотев и ул.'Добри Немиров', в близост до магазин 'Фантастико' на ул.'Джвахарлал Неру' и ДКЦ Софиямед - Люлин . Непосредствено пред комплекса има спирки на градски транспорт, а достъпът до метростанция Люлин и Околовръстен път на София е в рамките на няколко минути. Наблизо са разположени супермаркетите Billa и Lidl, автоуслуги, сервизи, бензиностанции, разнообразие от магазини, пазар, училища и детски градини, големи зелени площи, болница, фитнес и заведения.
Възможно закупуване на подземни паркоместа на цена от 25 000 евро и гараж на цена 35 000 евро;

Характеристики:

Качествено строителство с немски, австрийски и френски материали и технологии;
Сградата разполага с просторни двустайни, тристайни и четиристайни апартаменти ;
Гаражи и подземни паркоместа ;
Изгодни цени за качествено и модерно ново строителство в район с отлично развита инфраструктура;
Гъвкави планове за плащане и възможност за покупка с ипотечен кредит;

Схема на плащане:

30% при предварителен договор
30% при акт14 - завършен груб строеж
30% при акт15 - изцяло завършена сграда по стандарт
10% при акт16 - въседена в експлоатация

Конструкция
Монолитна скелетно-безгредова конструкция проектирана по последните стандарти за земетръсна устойчивост и най-добрите практики в областта, изпълнена с безкомпромисна точност с помощта на най-модерните лазерни и оптични измервателни средства и високотехнологични кофражни системи.

Покрив
Скатен покрив, включващ топлоизолация, армирана замазка от водоплътен ...

За повече информация свържете се с нас и цитирайте референтния номер на имота. Моля, кажете, че сте видeли обявата в този сайт.
Референтен номер: SOF 137670
Тел: 0882 638 449, 02 454 11 83
Отговорен брокер:Милена Ралчева
Без комисиона от купувача
Особености
Тухла
Асансьор
С паркинг
За контакт:
0882638449
Брокер:
Милена Ралчева
0882 63 84 49
Още оферти от брокера: Продава | Дава под наем | Купува | Наема
Агенция:
СУПРИММО - ГЛАВЕН ОФИС
02 447 12 93; 0883 700 335
СУПРИММО - ГЛАВЕН ОФИС logo
Медал за прослужено време
В imot.bg от 2008 г.
superimoti.imot.bg
Адрес:
област София, гр. София, бул. 'Черни връх' 51-Г, етаж 7(офис сграда Realtons Pl
http://superimoti.bg
ИЗПРАТИ ЗАПИТВАНЕ
ИЗПРАТИ ЗАПИТВАНЕТО

Продава 2-СТАЕН
град София, Люлин - център
Обява: 1b177022080129361

136 500 €
266 970.80 лв.
История на цената
(1 978 €, 3 868.63 лв./m2)

Цената е с включено ДДС
ЗАПАЗИ ОБЯВАТА

Местоположение: град София, Люлин - център

Допълнителни данни за имотите в района и сравнение с други райони

Покажи

Период

и 3 месеца

* Средните цени са определени чрез медианна стойност