Обяви За нас Контакти
Продава 2-СТАЕН
град София, Левски
122 591 €
239 767.16 лв.

(1 857 €, 3 631.98 лв./m2)
Цената е без ДДС
История на цената
Коригирана в 15:37 на 7 февруари, 2026 год.
Обявата е посетена 909 пъти.
Площ:
66 m2
Етаж:
2-ри от 6
Газ:
НЕ
ТEЦ:
НЕ
Строителство:
Тухла, Ще бъде въведен в експлоатация 2027 г.

Описание на имота:


Агенция SUPRIMMO: www.suprimmo.bg
Представяме двустаен апартамент в качествена нова сграда в кв. 'Левски', с удобна локация с бърз достъп до 'Ботевградско шосе', което свързва района с бул. 'Мадрид' и осигурява удобна връзка с централната част на София. Разработена е с концепция с приоритет върху максималната енергийна ефективност и ниските разходи за поддръжка, благодарение на качествените материали и изпълнението.

В строеж. Планиран Акт 16 - март 2027 г.

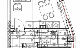
Имотът е с обща площ 66,99 кв.м, разположен е на 2-ри и се състои от антре, дневна с кухня, спалня, баня с тоалетна, тераса. Към имота има мазе с площ 2.35 кв.м. Жилището се издава по БДС, с възможност новия собственик да оформи интериора по свой стил.

Жилищната сграда е проектирана на 6 етажа + сутерен, с общо 19 апартамента. Общите части ще бъдат изпълнени в луксозен стил, с внимание към детайла и високи стандарти за качество.

Налични за продажба са:
двустайни апартаменти;
един тристаен апартамент;
две студиа на последен етаж.

За максимално удобство са предвидени:
14 подземни паркоместа;
5 открити паркоместа.
*Има опция за закупуването на подземни паркоместа на цени от 27 000 евро (52,806.60 лв.) без ДДС.

Конструкция, материали и енергийнa ефективност:
Фасада с топлоизолация 10 см EPS Baumit;
Покрив с 14 см минерална вата и двойна хидроизолация, завършен с битумни керемиди;
Външни и преградни стени от висококачествени тухли Wienerberger;
Фасадни стени с комбинация от полимерна мазилка и декоративни тухли Caparol;
Петкамерна дограма Veka с троен стъклопакет с К-стъкло отлична шумо- и топлоизолация;
Блиндирани входни врати;
XPS под подовата замазка във всички помещения за по-добра шумо- и топлоизолация;
Вградени: позвънителна, телефонна и домофонна инсталации, ...

Цената на имота е 122 591 евро / 239 767.16 лв. без ДДС или 147 109 евро / 287 720.59 лв. с ДДС. Данъчен кредит може да се ползва при определени условия.

За повече информация свържете се с нас и цитирайте референтния номер на имота. Моля, кажете, че сте видeли обявата в този сайт.
Референтен номер: SOF-136412
Тел: 0884 603 656 , 02 424 99 01
Отговорен брокер:Иво Ценов
Особености
Тухла
Асансьор
За контакт:
0884603656
Брокер:
Иво Ценов
0884 603 656
Още оферти от брокера: Продава | Дава под наем | Купува | Наема
Агенция:
СУПРИММО - ГЛАВЕН ОФИС
02 447 12 93; 0883 700 335
СУПРИММО - ГЛАВЕН ОФИС logo
Медал за прослужено време
В imot.bg от 2008 г.
superimoti.imot.bg
Адрес:
област София, гр. София, бул. 'Черни връх' 51-Г, етаж 7(офис сграда Realtons Pl
http://superimoti.bg
ИЗПРАТИ ЗАПИТВАНЕ
ИЗПРАТИ ЗАПИТВАНЕТО

Продава 2-СТАЕН
град София, Левски
Обява: 1b176469120929336

122 591 €
239 767.16 лв.
История на цената
(1 857 €, 3 631.98 лв./m2)

Цената е без ДДС
ЗАПАЗИ ОБЯВАТА

Местоположение: град София, Левски

Допълнителни данни за имотите в района и сравнение с други райони

Покажи

Период

и 3 месеца

* Средните цени са определени чрез медианна стойност